
Voortbouwen in Kethel
Vroeger bevond zich tussen de kavels een achterstraat met werkplaatsen, bedrijvigheid en schuren. Deze achterstraat is eind jaren ‘70 verdwenen, waarmee er een binnenwereld met diepe achtertuinen ontstond. Op vele van deze kavels stonden achteraan bedrijfsruimten, toegankelijk via een eigen oprit vanaf de straat. In 1980 liet de Familie Ham een nieuwe bedrijfshal bouwen dat sinds enkele jaren niet meer in gebruik is. De opgave bij dit project is om op de fundamenten van deze hal een nieuwe woning te bouwen voor hun twee dochters.
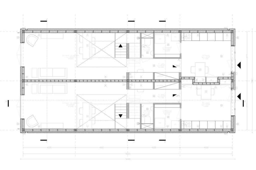
Het nieuwe huis wordt opgedeeld in twee langwerpige woondelen, van 16 meter diep en 3,5 meter breed. Beide hebben ze toegang tot de achtertuin. De complexiteit van de locatie met lange kavel grenzen is vertaald naar een eenvoudige opzet van de plattegrond. De centraal gelegen vide zorgt via de dakramen in de kap voor een bijzonder spel van daglicht. Dit in combinatie met heldere gebruiksruimten bepaalt de verrassende ruimtelijkheid van de beide woningen. De voordeuren van de nieuwe woningen aan de tussentuin zijn tegelijktijd ook tuindeuren aan het gezamelijke woonerf. Er ontstaat zo een informeel karakter dat past bij de erven zoals ze hier in het dorp al decennia lang zijn.

Circulariteit in een integraal ontwerp
De architectonische taal die het ontwerp van het nieuw te bouwen huis spreekt is vertrouwd. Het mansardedak bepaalt het silhouet van het bouwwerk en is tegelijkertijd een efficiënte dakvorm die het constructief mogelijk maakt de staal constructie van de bestaande bedrijfshal te kunnen hergebruiken. Bovendien worden op meest platte deel van de kap, onttrokken aan het zicht op straatniveau, 28 zonnepanelen geïntegreerd. Het huis wordt gebouwd op de bestaande fundering en begane grondvloer van de bedrijfshal. De woningscheidende wand is zo ontworpen dat in de toekomst op een gemakkelijke manier andere ruimtelijke configuraties mogelijk zijn zonder dat hiervoor grote bouwkundige ingrepen nodig zijn. Dit geeft in de toekomst enorme vrijheid en mogelijkheden in het wonen en leven op dit erf in Kethel.


projectinformatie
jaar: 2023 – 2025
team: Robbert Guis, Julia Coolen, Barten Verschoor, Tobias Macchione
opdrachtgever: Ham Real Estate BV
oppervlakte: 200 m²
locatie: Schiedam